Советы дизайнеров

Квартира в американском стиле на проспекте Вернадского


Квартира в американском стиле на проспекте Вернадского

Американская классика принадлежит к числу стилей, требующих особого внимания к деталям отделки и обстановки. Перенести на московскую почву лучшие традиции и инновации новосветского дизайна взялась дизайнер по интерьерам Галина Микулик. Простота, элегантность и продуманность функционала — три главных критерия, которыми руководствовалась Галина при создании интерьера.

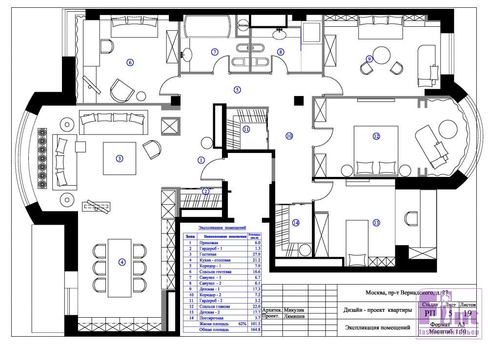
Две квартиры, объединённые в одну, и полный карт-бланш от заказчиков — автору этого проекта со «стартовым капиталом» определённо повезло. Шестикомнатная квартира общей площадью 180 кв. м предполагала множество возможных стилевых решений, однако Галина твёрдо знала, чего она хочет предложить заказчикам — американскую классику.

Желая создать ощущение «одноэтажной Америки», дизайнер спроектировала интерьер одновременно солидный и лаконичный, знающий себе цену и при этом предельно функциональный. Шесть комнат квартиры «закольцевали» вокруг центральной оси.

Все помещения квартиры, сгруппированные вокруг центральной оси, чётко делятся на общественные и приватные. Гостиная переходит в кухню-столовую, следом идут кабинет, два санузла, две детских комнаты с хозяйской спальней посередине, постирочная и гардеробные. Спальня родителей, расположенная в центре приватного пространства между двумя детскими, стала символом покоя и интеллигентности, старательно культивируемых респектабельной мебелью, дорогой фактурой, мягкими натуральными тканями и рассеянным светом, льющимся из полукруглого эркера.

Четырехлетняя хозяйка квартиры оказалась страстной собирательницей мягких игрушек. Специально для неё дизайнер спроектировала детскую с множеством открытых и закрытых мест хранения. Для семилетнего мальчика было решено разработать многофункциональную комнату «на вырост» с отдельной зоной для занятий уроками. В проекте использовалась кровать бренда Frauflex.

Роль своеобразного «якоря» в этом круговом движении играет, пожалуй, самый необычный предмет всего интерьера — светильник дизайнера Кевина Релли. «Я была первой, кто привез эту люстру в Россию, — вспоминает Галина. — До этого никому в голову не приходило везти светильник длиной 2,3 метра». Запатентованную американским дизайнером конструкцию — оригинальный синтез натурального свечного парафина с электрическими лампочками — разместили в совмещенной с гостиной кухней-столовой.

Обе ванные комнаты выполнены в одной стилистике, но с разным наполнением: в первой — просторная ванна, во второй — большая душевая кабина.

Автор

Галина Микулик — дизайнер интерьера, руководительница собственного архитектурного бюро, основанного в 1999 году.

Эту статью прочитали 4534 человек с 26 сентября 2017.
Оцените статью [ 1 голос ]

Вернуться

Следующая статья: Двухуровневая квартира в Перми с камином, сауной и почти настоящими джунглями
Предыдущая статья: Стиль Шале в московской квартире

 

Добавить комментарий
Ваше имя(*):
Комментарий(*):
Код изображения This is a captcha-picture. It is used to prevent mass-access by robots. (see: www.captcha.net)