«Дом в Йокогаме» – это новое необычное творение японских архитекторов и дизайнеров, расположенное на тихой улице Аобадай в городе Йокогама. Несмотря на скромные размеры, здание было задумано архитектурной фирмой Airhouse как достаточно вместительный скульптурный объём, который выделяется на фоне окружающей среды, предлагая владельцам этого необычного дома светлое, открытое пространство без ущерба для уединения и домашнего уюта.

По периметру дома расположена подпорная стена, которую команда Airhouse установила после подготовки первоначально сформированного участка земли под постройку. «Участок, как и прилегающая земля, находился в ситуации, когда он был поднят на одну ступеньку над главной дорогой и имел насыпь. Мы приняли решение срыть насыпь до уровня дороги, чтобы понизить участок до уровня соседних зданий», – пояснили специалисты команды Airhouse.

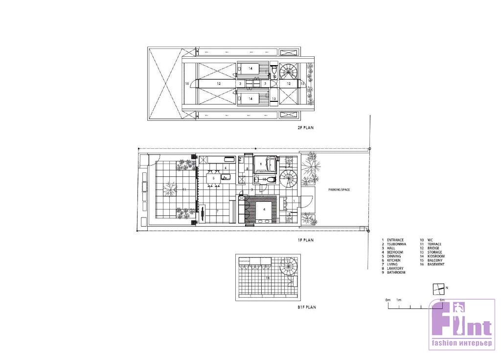
Первый этаж «Дома в Йокогаме» представляет собой прямоугольный объём, подчёркнутый простым входом с дороги. Сразу за входной дверью, жильцов встречает просторное помещение, выполняющее функции гостиной, столовой и кухни. Дальше в глубине дома дизайнеры Airhouse обустроили закрытую террасу, оживляемую солнечным светом в течение дня. Вертикальная связь дома выражена спиральной лестницей, соединяющей первый этаж с полуподвальным помещением, в котором находится спальня для гостей.

Лестница также ведет на верхний уровень, выполненный в виде острого треугольного атриума, освещенного щелевидными потолочными окнами. Благодаря лёгкости конструкций и особенностям архитектуры, свет, проникающий внутрь дома через эти потолочные окна, достигает пространства первого этажа и даже входа в дом. По словам дизайнеров и архитекторов Airhouse, использование атриума с острыми углами позволяет дневному свету щедро проникать внутрь и создаёт удобный промежуток между «Домом в Йокогаме» и соседними резиденциями.

«В результате в жилом районе, продумав, как разделить границу между плоскостью основания здания и участком, можно обеспечить простор и естественное освещение, а уникальная геометрия этого дома создает комфортное пространство, полное света. Дом стал богатым жилым пространством, где вы можете жить с чувством открытости и природы даже в городе», – дополняют свой рассказ о проекте его авторы.

Придающий дому особую изюминку треугольный атриум накрывает прямоугольный первый этаж дома. Такая же по форме прямоугольная закрытая терраса спроектирована дизайнерами Airhouse в задней части резиденции. Несмотря на плотность застройки, терраса, как и весь дом, отлично освещены естественным солнечным светом. В передней части дома, обращённой на дорогу, сформировано зеркальное отображение террасы на заднем дворе, но с открытым пространством, открывающим фасад дома.

Внутреннее убранство и дизайн интерьера дома построен всего на двух основных оттенках: белом цвете конструкций и цвете натурального дерева в мебели, напольных покрытиях и элементах интерьера. Единственным отличающимся элементом внутренней отделки является кухонный фартук, выложенный светлым натуральным камнем.

Фото: airhouse.jp
Следующая статья: Зеркальная облицовка помогает бельгийской вилле «исчезнуть» в лесу
Предыдущая статья: С Праздником Весны 8 Марта!