К дизайнерам Анне и Даниилу Щепанович из CubiqStudio обратился молодой мужчина с необычной просьбой — разработать интерьер квартиры в одном из бывших офисных помещений около подмосковного ЖК «Гринфилд». Заказчик хотел получить строгий холостяцкий интерьер без лишней мебели и предметов обстановки.

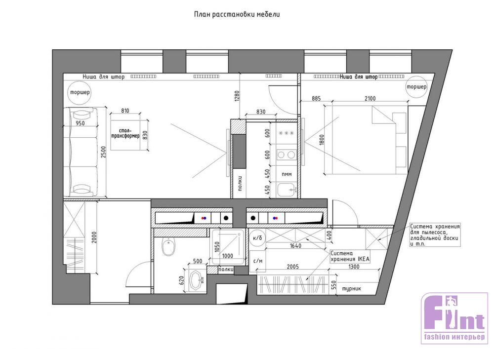
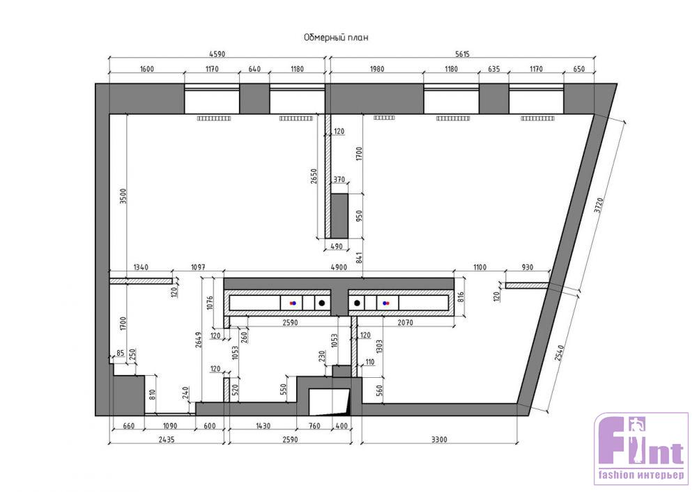
Особенности планировки офиса сразу дали понять: простых решений здесь не будет. «Фактическое отсутствие места для кухни, расположение стояков водоснабжения и канализации, а также несущая колонна в центре помещения сильно ограничивали нас в вариантах расстановки мебели и оборудования», — рассказывает Анна.

К счастью, техзадание не уделяло кухне особого внимания, и тем не менее дизайнерам удалось изолировать её с помощью перегородок в центре комнаты, попутно обыграв несущую колонну. В кухне размещено всё самое необходимое: минихолодильник, духовой шкаф с варочной поверхностью, посудомоечная машина, мойка, а также закрытые и открытые системы хранения.

Оставшееся пространство разделили на функциональные зоны: прихожую, санузел, гостиную, просторную спальню и вместительную гардеробную с множеством систем хранения, стиральной машиной и спортивным инвентарём.

Пространство санузла, как и общее пространство квартиры, выполнено в светлых оттенках. Все поверхности отделаны керамической плиткой: на стенах она классического вида, в нишах же использована прямоугольная плитка, имитирующая деревянные панели - в тон тумбы под раковиной. С целью экономии пространства в санузле использована сантехника со встроенной в стену системой слива. Благодаря этому решению, санузел удалось укомплектовать всем необходимым и, при этом, он не выглядит загромождённым.

Весьма остроумно дизайнерам удалось реализовать зонирование спальни, которая скрывается за зеркальной перегородкой с такой же зеркальной дверью. В закрытом состоянии зеркальная панель от пола до потолка зрительно расширяет пространство, скрывая приватную зону спальни.

Высокие потолки, огромные окна, впускающие максимальное количество света, минимальное количество мебели, зеркала в отделке — всё это дает ощущение простора и воздуха, несмотря на довольно скромные габариты жилища.
Автор

Анна Щепанович — дизайнер интерьеров из Санкт-Петербурга. Окончила СПГГИ (ТУ) им. Г.В. Плеханова. Совместно с Даниилом Щепанович руководит студией СubiqStudio.
Следующая статья: Как создать современный интерьер в кратчайшие сроки
Предыдущая статья: Как из «убитой» коммуналки сделать стильную и современную квартиру (ФОТО)