Автору сегодняшнего проекта повезло вдвойне. Квартира, которую ему предстояло оформить, отличалась не только уникальным форматом, но и локацией. Соединить минимализм и природные мотивы в интерьере двухуровневых апартаментов на берегу Волги взялся дизайнер, руководитель проектов и арт-директор собственной студии «Н-Куб» Николай Николаев.

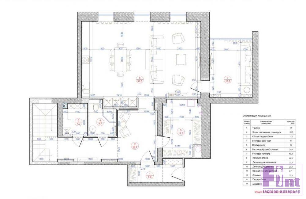
Николаю Николаеву предстояло оформить нестандартное жильё для семьи заядлых путешественников из Твери. Заказчики выкупили две квартиры на разных этажах и решили объединить их в одну. «Необычно, что помещения находились в разных отсеках дома и соединялись небольшим лестничным проходом, — рассказывает Николай. — Уникально и место, где располагалась квартира, это берег Волги».

Локация и желание заказчиков использовать только натуральные материалы обусловили выбор стилевого решения. В отделке потолка, пола и стен присутствуют камень и дерево. В «природную» стилистику вписывается и выбранная цветовая гамма с преобладанием коричневого, белого и зеленого. А вот геометрия интерьера по-модернистски строгая и призвана напомнить дорогие апартаменты, в которых заказчики так любят останавливаться во время своих поездок.

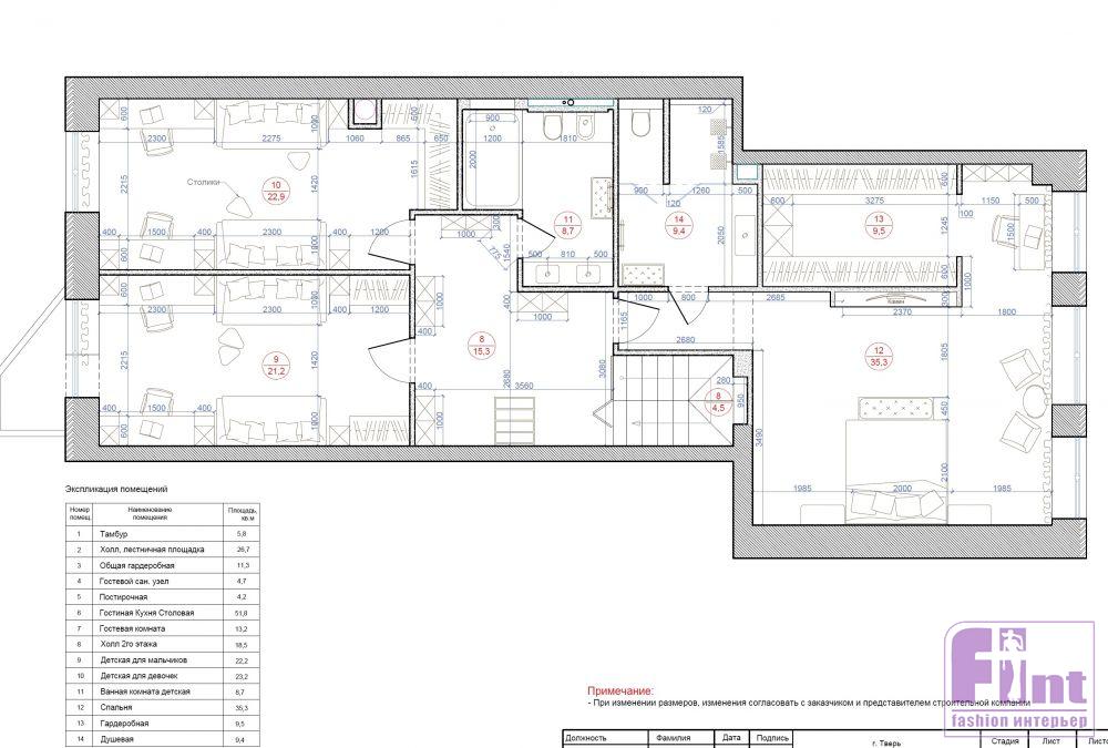
Большое внимание уделено здесь и удобству планировки. На первом этаже разместили совмещённую зону кухни-гостиной, гостевую, большую гардеробную, холл, санузел и отдельную постирочную комнату. Второй этаж отвели под приватные помещения: большая спальня хозяев квартиры с личной гардеробной и ванной комнатой и две детские комнаты с санузлом.

Спальня хозяев апартаментов поражает своим размером и комфортом. В пространство удалось органично вписать скрытую за деревянной стеной гардеробную комнату, а один из углов отдать под небольшой рабочий кабинет. Небольшой письменный стол, установленный у панорамного окна с прекрасным видом, позволяет немного поработать даже перед сном.

В деревянные панели стены, разделяющей спальную зону и гардеробную, встроен широкоформатный биокамин с живым пламенем, создающий невероятно уютную и тёплую атмосферу в этой приватной зоне апартаментов.

На всех уровнях квартиры автору удалось успешно реализовать довольно сложную систему освещения. Квартира освещается самыми разнообразными источниками света, часть из которых видимые, а часть – скрытые. Так, скрытыми источниками подсвечивается многоуровневый потолок в гостиной и акцентная деревянная стена в спальне и аналогичные конструктивные элементы других помещениях.
Автор

Николай Николаев работает в области дизайна интерьеров и архитектуре с 2003 года. Получил образование в Высшей Британской Школе Дизайна. Руководитель проектов и арт-директор в собственной студии «Н-Куб» с 2010 года.
Следующая статья: Комфортный лофт для людей и котов
Предыдущая статья: Квартира с мансардой в стиле минимализм