Поиск оптимального планировочного решения становится настоящим вызовом, когда две комнаты нужно превратить в три, да ещё и предусмотреть гардеробную, постирочную и рабочую зону. Обо всех хитростях создания функционального жилья для молодой пары рассказала архитектор-дизайнер интерьеров и руководитель студии «Дверь в лето» Алёна Николаева.

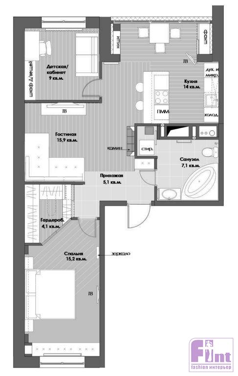
Алёне Николаевой предстояло оформить двухкомнатную квартиру для молодой пары. Первое и важнейшее пожелание заказчиков касалось перепланировки: вместо «двушки» хозяева непременно хотели получить «трёшку», при этом максимально увеличив санузел и сделав более просторной кухню. Пожелания по стилю и дизайну: максимально функциональный интерьер. Эклектика, минимализм, ар-деко, тайский стиль и восточные мотивы.

Алёне удалось довольно быстро утвердить у заказчиков проект. В короткий срок были согласованы объемно-планировочное решение и коллажи, мебель, свет и все чистовые отделочные материалы. Во многом этот проект - результат сотворчества дизайнера с заказчицей, которая принимала активное участие в проекте, базируясь на своём хорошем вкусе и тонком ощущении модных тенденций в дизайне интерьера.

«В итоге санузел мы сделали совмещенным и установили большую душевую кабину, кухню объединили с гостиной, а третью комнату отдали под кабинет, который позже можно будет трансформировать в детскую», — рассказывает Алёна.

В рамках проекта дизайнеру удалось создать довольно просторную и удобную кухню, которая по изначальной планировке была менее удобной и занимала меньшую площадь. Зона приготовления и приёма пищи комфортно совмещена с гостиной. Пространственно-планировочные решения Алёны помогли заказчикам получить, в качестве своеобразного бонуса, большую гардеробную-кладовку и довольно объёмный шкаф в прихожей.

Интерьер выполнен на стыке нескольких стилей: в гостиной доминирует скандинавский стиль с его воздушностью и цветовой приглушённостью, кухня получилась ярким акцентным пятном, а приватная зона включила в себя элементы тайского стиля — перегородки, кушетку у окна, спокойную бежевую расцветку.

Нашлось в квартире место и для нестандартных решений. Таким стала, например, грифельная краска вместо обычной доски на кухне, а также мозаика, вплавленная в полимерную столешницу.
Автор

Алёна Николаева — архитектор и дизайнер интерьера. В 2009 г. закончила очное дневное отделение Новосибирской Государственной Архитектурно-Художественной Академии (НГАХА) по специальности архитектор–дизайнер, кафедра «Дизайн архитектурной среды». С 2007 г., будучи ещё студенткой НГАХА, начала создавать свои первые интерьеры и ландшафтные проекты в г. Новосибирске. В 2011 году основала студию «Дверь в лето». В настоящее время живёт и работает в Московской области.
По материалам: radidomapro.ru и dvervleto.me
Следующая статья: Цветная провокация в интерьере 3-х комнатной квартиры в Москве
Предыдущая статья: Дизайн интерьера в классическом стиле со скандинавскими нотками