Образ жизни миллениалов диктует свои требования к дизайну интерьеров. Не последнее место среди них занимают мультифункциональность и тщательный отбор выразительных средств. Примером подобного подхода служит сегодняшний проект студии Geometrium.

Дизайнерам Павлу Герасимову и Алексею Иванову предстояло создать интерьер для молодой москвички, ведущий весьма активный образ жизни. Среди увлечений заказчицы — йога, сноуборд, рисование и дружеские посиделки. Столь же разнообразной должна была стать и её квартира. Основной функциональной задачей, которую дизайнерам нужно было решить в этом пространстве, — создание свободного интерьера с разнообразным функционалом. По замыслу, в таком интерьере должно быть комфортно, как одному человеку, так и большой компании друзей. Необходимо было максимально сократить узкие коридоры и объединить их с общим пространством всей квартиры.

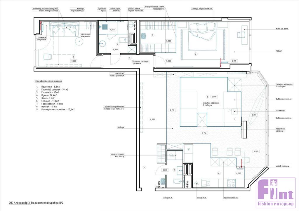
«Первичный план не предусматривал основных перегородок, кроме стен санузлов, — вспоминает Павел. — Перепланировка затронула гостевой санузел и входную группу. При этом санузел для хозяев остался в тех чертах, в которых был продуман изначально».

Отдельным пожеланием заказчицы стал максимум свободного пространства. Его, однако, требовалось обыграть так, чтобы зоны уединенного досуга с лёгкостью превращались в места для дружеского общения. Отсюда — предельная открытость гостиной с тщательно подобранной мебелью. Благодаря грамотной перепланировке дизайнерам удалось реализовать вместительную гардеробную комнату, расположенную при спальне. Основные места хранения в проекте закрытого типа — встроенные, замаскированные в объёмы стен. Присутствуют и открытые (стеллажи) — мобильные с возможностью перемещения полок. Гардеробная, по замыслу авторов проекта, вынесена в отдельное помещение с естественным освещением.

Интерьер выполнен в стиле лофт. В отделке обращает на себя внимание штукатурка под бетон, а также деревянные панели, эффектно подчеркнутые декоративным кирпичом, напоминающим старую кладку. Независимым элементом интерьера стали очень необычные и оригинальные трубчатые радиаторы. Довольно необычным решением для городского интерьера стал гамак, эффектно расположенный в гостиной зоне.

По согласованию с заказчицей, дизайнеры предусмотрели использование в проекте исключительно натуральных материалов во всех помещениях. В отделке стен использованы экологически чистая водоэмульсионная краска, декоративная штукатурка, имитирующая бетонную поверхность, деревянные панели и декоративный кирпич, реалистично имитирующий старую кирпичную кладку. Для стен в санузлах использован крупноформатный керамогранит с текстурой мрамора.

В квартире предусмотрены различные сценарии освещения с участием разнообразных типов осветительных приборов. Например, встроенные светильники используются для создания фонового освещения, а трековая осветительная система выполняет функцию мобильного света. Дополнительные подвесы служат для деликатной локальной подсветки.

Многочисленного отвлекающего декора в квартире нет. Присутствуют лишь акцентные напольные картины для создания активного цветового пятна в интерьере. В основном помещении текстиль добавлен в качестве запасного. Основную функцию защиты от палящего солнца берут на себя широкие деревянные жалюзи. В спальне и гостевой текстиль служит для непосредственной защиты от солнца и добавляет уюта этим приватным зонам.
Авторы

Павел Герасимов — ведущий дизайнер, арт-директор, соруководитель студии Geometrium. Окончил МХУПИ(к) по специальности «художник-скульптор», а также Школу архитектуры и дизайна по специальности «Дизайнер интерьера».

Алексей Иванов — архитектор-дизайнер, арт-директор, соруководитель студии Geometrium. Учился в СПАСК по специальности «техник-архитектор» и в СПбГТУ (Политех) по специальности «промышленно-гражданское строительство». Проходил многочисленные курсы по дизайну интерьера и управлению бизнеса.
По материалам: geometrium.com и radidomapro.ru
Фото: geometrium.com
Следующая статья: Интерьер трёхкомнатной квартиры, вдохновленный Нью-Йорком
Предыдущая статья: Дизайн интерьера квартиры для семьи архитекторов