Современный минимализм нередко представляют как стиль, игнорирующий само понятие домашнего уюта. Развеять этот стереотип, соединив стилевую лаконичность и стремление к естественности, взялись дизайнеры, основатели и руководители студии Geometrium Павел Герасимов и Алексей Иванов.

К Павлу и Алексею обратилась молодая петербуржская пара. Заказчики тяготели к минимализму, однако меньше всего хотели жить в «стерильном» интерьере — напротив, свой будущий дом они видели наполненным теплом и уютом.

«Мы остановились на сочетании мрамора с натуральным деревом и чёрными графичными элементами», — рассказывает Алексей. Белизна мрамора, по замыслу дизайнеров, должна была сделать интерьер более светлым, визуально придав ему дополнительный объём, а дерево — более тёплым и мягким.

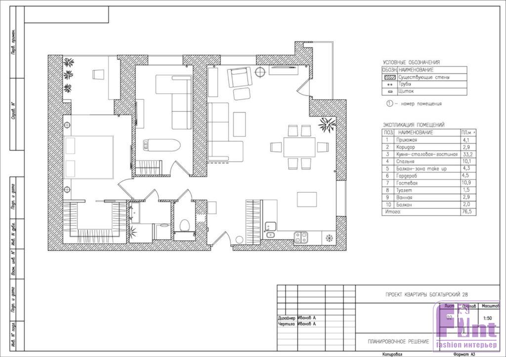
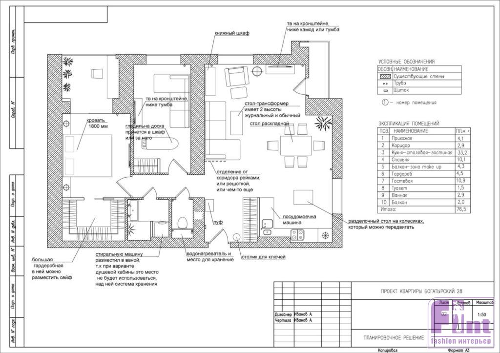
Квартиру поделили на зоны. Кухню объединили с гостиной и столовой, а гардероб вынесли в отдельное помещение, создав дополнительные системы хранения в коридоре. Системы хранения на кухне, в целях экономии пространства, располагаются до потолка. Коридор и гостиная разделены декоративной стеной из обработанных и декорированных деревянных реек, придающих вертикальную динамику небольшому по площади помещению коридора.

Вертикальные элементы в спальне — двери, шторы, изголовье, зеркала на стенах — визуально увеличивают высоту потолка. За зеркальной дверью располагается полноценная гардеробная комната, способная вместить внушительный объём вещей, обуви и аксессуаров. Изголовье кровати выполнено из мягких квадратных блоков, обтянутых светлой тканью, прекрасно гармонирующей с общей цветовой схемой этого приватного помещения. Балкон был утеплён и присоединён к спальне — на нём располагается зона make-up. На балконе установили электрический радиатор, комнатный же радиатор центрального отопления аккуратно замаскирован плотной шторой.

Планировка и общая площадь квартиры позволила дизайнерам выделить в проекте отдельную гостевую комнату. Помещение для возможных гостей обустроено довольно лаконично: небольшой раскладной диван, телевизор и шкаф, в котором хранится гладильная доска. Интерьер гостевой комнаты прекрасно дополняет триптих из современных постеров на стене над диваном и стильный арочный торшер в дальнем от входа углу комнаты.

Душевая и туалет отделаны плитами из натурального мрамора. Отдавая дань общему стилевому решению квартиры, дизайнеры предусмотрели в ванной комнате наличие деревянных элементов, связывающих интерьер санузла с дизайном всей квартиры. Декоративные элементы душевой и туалета представлены деликатной рамой настенного зеркала и отделкой выдвижных ящиков подстолья раковины.

Авторы:

Павел Герасимов — ведущий дизайнер, арт-директор, соруководитель студии Geometrium. Окончил МХУПИ (к) по специальности «художник-скульптор», а также Школу архитектуры и дизайна по специальности «дизайнер интерьера».

Алексей Иванов — архитектор-дизайнер, арт-директор, соруководитель студии Geometrium. Учился в СПАСК по специальности «техник-архитектор» и в СПбГТУ (Политех) по специальности «промышленно-гражданское строительство». Проходил многочисленные курсы по дизайну интерьера и управлению бизнеса.
По материалам: geometrium.com и radidomapro.ru и
Фото: Geometrium
Следующая статья: Светлый лофт с природными акцентами
Предыдущая статья: Скромный интерьер коттеджа с потрясающим видом на Альпы