Крошечные по площади квартиры из-за своей стоимости стали хитом продаж в последние годы. Дизайнера Ольгу Катюк не смутили более чем скромные габариты этой квартиры, в которой на 28 квадратных метрах площади поместились полноценная кровать, обеденная и рабочая зоны, проходная кухня, ванная и системы хранения. И еще осталось место для занятий йогой.

Родители заказчицы приобрели эти апартаменты 28 м² для дочери с возможностью дальнейшей сдачи в аренду. И хотя площадь студии совсем небольшая, дизайнеру по интерьерам Ольге Катюк удалось сделать её комфортной для проживания одного человека или пары. Заказчица — студентка театрального вуза, очень энергичная, жизнерадостная и харизматичная. Интерьер во многом отражает её натуру.

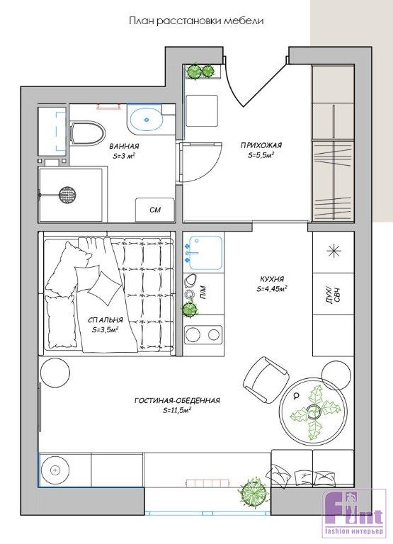
«В планировке никаких глобальных перемен не было: мы немного сдвинули стену, отделяющую жилое пространство от нежилого, чтобы «подогнать» ванную под нужные размеры, и возвели перегородку в жилой комнате для разграничения зон, — рассказывает Ольга Катюк. — Общее жилое помещение разделили на три функциональных зоны: кухня, спальня и гостиная с обеденной зоной».

Акцент в жилой комнате направлен на графичную обеденную зону с большим каскадным абажуром. Масштаб — это ещё один приём, который дизайнер часто использует в своих проектах. «Здесь я работала именно с формой и объёмом абажура, а цвет оставила нейтральным, почти в тон стенам, благодаря чему светильник смотрится очень гармонично и совсем „не тяжело“, — рассказывает Ольга Катюк. — Для выразительности интерьера я добавила чёрный цвет: подстолье, бра, даже панно скомбинировала так, чтобы оно вобрало в себя все цвета воедино».

В качестве отделки выбрали краску, на полу комбинировали керамогранит и инженерную доску. Обеденную зону украсили панно из керамической плитки с геометрическим принтом. Панно, кстати, выполняет ещё и защитную функцию стены. В ванной комнате внимание привлекает керамогранит с модной текстурой терраццо — выглядит очень эффектно. Кухонный гарнитур с глянцевыми фасадами получился «на проходе», он оснащён всей необходимой техникой, имеет достаточно мест для хранения продуктов и посуды.

Основным пожеланием заказчицы было создание максимально комфортного места для занятий йогой и для танцев, чтобы «не биться об углы и не перелезать через мебель». Ольга нашла изящное решение — спроектировала функциональную конструкцию вдоль окна по всей длине стены: она состоит из места для сидения в обеденной зоне, рабочего стола и вместительного комода для одежды и косметики. Таким образом, освободился центральный проход, где хозяйка апартаментов сможет заниматься.

Спальню обустроили в нише. Всё пространство заняла кровать на заказ с бортиками с трёх сторон. Сверху — подвесная система хранения для книг и разных вещей. Основной гардероб располагается при входе в квартиру: дизайнер создала здесь атмосферу гардеробной комнаты, в которой приятно подолгу крутиться перед зеркалом, меняя наряды.

Прихожая решена в тех же тонах, что и жилая комната. Выразительности и контраста добавляет динамичный пол из плитки. Ещё одна интересная деталь — большое зеркальное полотно внутри импровизированной рамы из молдинга. Отлично дополняет и завершает интерьер тщательно подобранный декор: постеры и текстиль.

Цветовая палитра интерьера монохромная, в нюдовых оттенках, с небольшим добавлением цветовых пятен. «Работая с небольшими пространствами, я всегда выбираю спокойную гамму и использую большие плоскости, поэтому здесь и стены, и потолок выкрашены матовой краской в один цвет. Только зону спальни выделили цветом на пару тонов темнее основного. Кодовое название „Happy morning“ не случайно закрепилось за этим проектом. Ведь утро в такой тёплой, солнечной квартире, даже с серым небом за окном, не может не быть добрым», — говорит Ольга Катюк.

Автор

Дизайнер по интерьерам Ольга Катюк. Окончила Российский государственный университет им. А. Н. Косыгина Технологии. Дизайн. Искусство (бывший Московский государственный университет дизайна и технологии – МГУДТ). Дизайном интерьеров занимается в рамках частной практики.
По материалам: inmyroom.ru
Фото: официальная страничка Ольги Катюк в соцсети
Следующая статья: Комфортная планировка и красивая эклектика небольшой квартиры в Челябинске
Предыдущая статья: Дизайн интерьера малогабаритнолй квартиры в Сочи